Jednosloupový zvedák Consul 1.15 BRM
Jednosloupový elektromechanický zvedák s nosností 1500 / 1000 kg pro zvedání menších zahradních strojů, čtyřkolek, malých užitkových komunálních vozidel apod.- podélně nastavitelné základní nosníky (při jejich plném vysunutí nosnost 1000 kg)
- nastavitelná nosná ramena
- zesílený nosný sloup ze speciálního válcovaného profilu
- kompletní zakrytování vnitřku sloupu
- zvedací vozík šestkrát uložený ve válečkových ložiskách
- nosná matice je vyrobená z bronzu, bezpečnostní matice z legované slitiny
- olejovače jako podpora mazání
- tlačítkové ovládání (Softline)
- akustický varovný spínač (ochrana nohou)
- GS-zkušební plaketa, DIN EN 1493, CE-certifikát
- mimořádně vysoká spolehlivost, velmi dlouhá životnost a jen minimální údržba
- špičková kvalita garantovaná renomovaným německým výrobcem
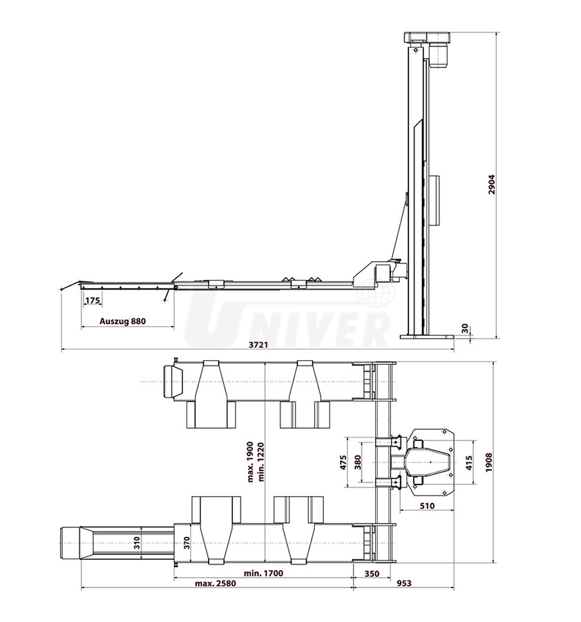
Technické parametry
| Nosnost | 1500 / 1000 kg |
|---|---|
| Výška zdvihu | 1910 mm |
| Doba zdvihu se zatížením | 45 s |
| Nejnižší výkyvná výška | 80 mm |
| Rozevření nosníků | 1220 – 1900 mm |
| Šířka | 1908 mm |
| Délka | 3721 mm (s vysunutím nosníků 880 mm) |
| Výška | 2904 mm |
| Napájení | 400 V / 50 Hz |
| Elektromotor | 3,0 kW |
| Jištění | 16 A |
| Krytí | IP 54 |
Volitelné příslušenství:
434282 Upevňovací materiál, 6 ks reaktivních kotev M16 se závitovými tyčkami, včetně 1 litru oleje na mazání šroubovice
388629 Vkládací podlážky pro umístění mezi nosníky pro zvedání tříkolových vozidel, 1000 x 500 mm
576710 Systém podchycení za kola pro maximální přístup, montáž na plošiny bez nářadí
Objednávka zboží
3310003886290
388629
388629
CONSUL 388629 Podlážka pro zvedání 3-kolových vozidel
na objednávku
na objednávku
Kč 10.350,00
3310005767100
576710
576710
CONSUL 576710 Systém s držáky kol / podchycení za kola
na objednávku
na objednávku
Kč 53.660,00




