Nůžkový zvedák LAUNCH TLT-855 A

Elektrohydraulický nůžkový plošinový zvedák s nosností 5500 kg, s dlouhými plošinami (5300 mm), s přídavným oboustranným nůžkovým zvedákem a LED osvětlením pro instalaci na podlahu.

  • víceúčelový nůžkový elektrohydraulický plošinový zvedák pro široké uplatnění v autoservisech všech velikostí
  • kvalitní hydraulika, přesná synchronizace pohybu obou plošin
  • instalace na podlahu nebo s použitím volitelné instalační sady (krátké rampy) i do úrovně podlahy
  • vhodný pro kombinaci s přístrojem pro měření geometrie kol
  • nízká konstrukční výška ve spuštěném stavu
  • samostatná ovládací skříňka
  • hydraulické bezpečnostní zařízení pro případ náhlého úniku oleje nebo přetížení
  • 24 V / nízkonapěťové ovládání
  • integrovaný přídavný oboustranný nůžkový zvedák
  • integrované osvětlovací lišty instalované uvnitř po obou stranách, vpředu i vzadu
  • součástí dodávky zvedáku jsou i přední otočné plošiny a zadní přesuvné plošiny
  • tloušťka betonu v místě instalace 150 mm nebo víc
  • vysoká provozní spolehlivost i při náročném využívání, dlouhá životnost, minimální údržba
  • kvalita garantovaná německým dodavatelem

Technické parametry

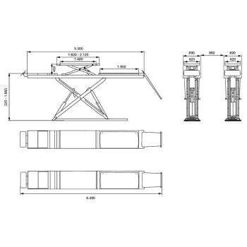
Nosnost5500 kg
Maximální zdvih1860 mm
Minimální výška (nad podlahou)220 mm
Délka plošin5300 mm
Šířka plošin680 mm
Mezera mezi plošinami880 mm
Doba zdvihu / spouštění50 s / 60 s
Elektromotor400 V / 3,0 kW
Hydraulická kapalina20 l
Hmotnost3436 kg

Objednávka zboží

2220000009230
TLT-855 A
LAUNCH TLT-855 A Nůžkový zvedák
Kč 408.990,00