Nůžkový zvedák Consul 0.35 SDE
(Dvoj)nůžkový elektrohydraulický zvedák (3,5 t) s délkově nastavitelnými plošinami a žárově pozinkovaným podlahovým rámem.- instalace na podlahu nebo v úrovni s podlahou
- instalace do podlahy nevyžaduje žádné další příslušenství
- velmi nízká konstrukční výška ve spuštěném stavu
- elektro-hydraulické ovládání v ovládací skříňce
- velmi tichý hydraulický pohonný agregát
- zdvojený hydraulický systém se zdvojenými válci v obou nůžkových částech, proto k nim není třeba přívod stlačeného vzduchu
- žárově pozinkovaná podlahová deska / rám
- galvanicky pozinkované plošiny z protismykového plechu s oválnými žebírky
- délku plošin lze z boku nastavit pomocí klapkového mechanismu
- hydraulické zajištění stejnoměrného pohybu plošin
- všechny klouby zvedáky jsou opatřené mazanými čepy
- ovládání se systémem mrtvého muže
- bezpečnostní signální tón při spouštění v oblasti nohou
- funkce nouzového spuštění s ochranou proti přetížení
- včetně sady (4 ks) elastomerových nosných podložek 250 x 150 x 20 mm
- GS-zkušební plaketa, DIN EN 1493, CE-certifikát
- mimořádně vysoká spolehlivost a velmi dlouhá životnost
- špičková kvalita (vyrobeno v Německu)
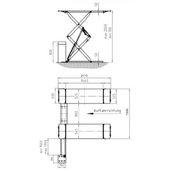
Technické parametry
| Nosnost | 3500 kg |
|---|---|
| Výška zdvihu | 100–2000 mm |
| Doba zdvihu / spouštění | 45 s |
| Délka plošin | 1460–2110 mm |
| Šířka plošin | 565 mm |
| Mezera mezi plošinami | 800 mm |
| Délka | 2110 mm |
| Šířka | 1990 mm |
| Výška | max. 2000 mm |
| Elektromotor | 2,2 kW |
| Napětí | 400 V / 50 Hz |
| Jištění | 16 A |
| Krytí | IP 54 |
Volitelné příslušenství:
38872.8 upevňovací materiál, 8 reakčních kotev M12, závitové tyčky a podložky
51855.5 galvanicky pozinkované plošiny
38732.4 případné prodloužení standardních hadic od zvedáku k ovládací skříňce / agregátu vždy po 1 m
32958.1 sada (4 ks) – elastomerové nosné podložky 250 x 150 x 20 mm
26936.5 sada (4 ks) – elastomerové nosné podložky 250 x 150 x 60 mm
32959.9 sada (4 ks) – elastomerové nosné podložky 250 x 150 x 90 mm
46222.6 hydraulický olej pro veškeré zvedáky Consul s hydraulickým pohonem v 5 l nádobě
52789.5 sada (4 ks) – pojezdové / odvalovací úhelníky pro instalaci zvedáku do úrovně podlahy bez základového rámu
Objednávka zboží
3310003873240
387324
387324
CONSUL 387324 Prodloužení hadic k ovl. skříňce (1 m)
na objednávku
na objednávku
Kč 10.890,00
3310003295810
329581
329581
CONSUL 329581 Elastomerové nosné podložky 250x150x20 mm (4 ks)
na objednávku
na objednávku
Kč 2.490,00
3310002693650
269365
269365
CONSUL 269365 Elastomerové nosné podložky 250x150x60 mm (4 ks)
na objednávku
na objednávku
Kč 6.790,00
3310003295990
329599
329599
CONSUL 329599 Elastomerové nosné podložky 250x150x90 mm (4 ks)
na objednávku
na objednávku
Kč 10.290,00
3310005278950
527895
527895
CONSUL 527895 Pojezdové úhelníky pro instalaci bez rámu (4 ks)
na objednávku
na objednávku
Kč 23.950,00


