Dvousloupový zvedák UNIVER DSZ 7.0H NP

Elektrohydraulický dvousloupový symetrický zvedák bez spojovacího prahu / přejezdu mezi sloupy s nosností 7000 kg a s elektromagnetickým odjištěním západek.

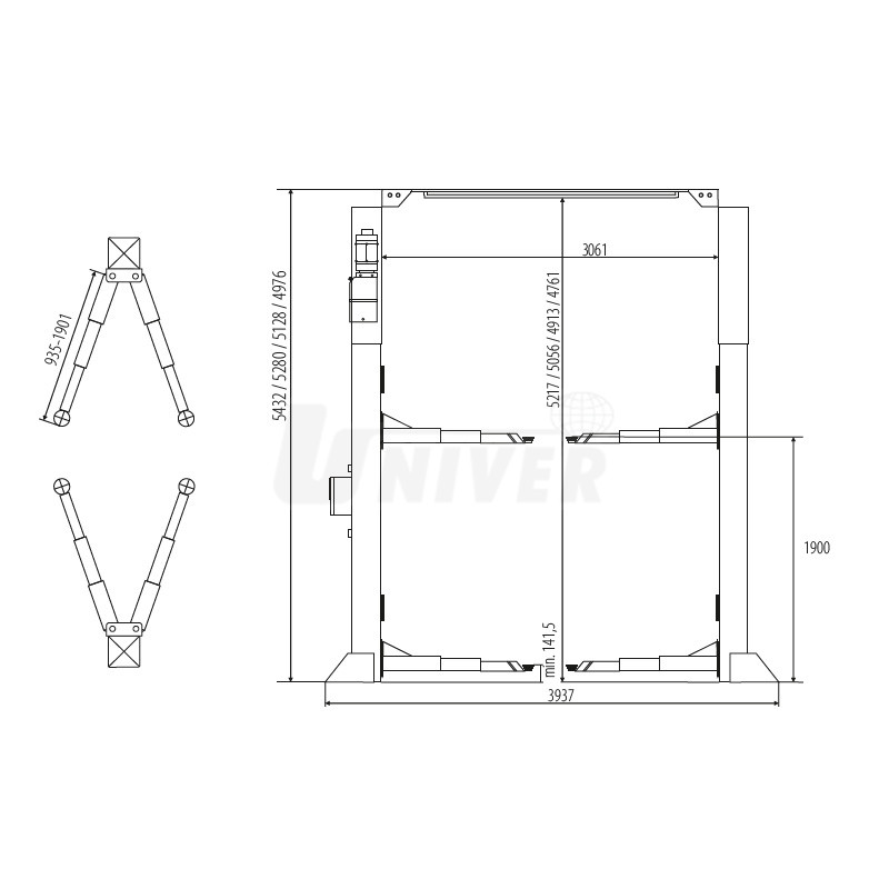
  • osvědčená konstrukce dvousloupového zvedáku v tzv. bezprahovém provedení s nastavitelnou výškou horního propojení sloupů
  • kvalitní hydraulika
  • symetrická, dvoustupňová, nastavitelná zvedací ramena (935 – 1 901 mm) s automatickou aretací polohy jejich natočení
  • aretace výšky zdvihu v požadované poloze pomocí automatických mechanických západek
  • obsluha tohoto zvedáku je velmi snadná a zcela bezpečná, provádí se tlačítky na vizuálně přehledném ovládacím panelu
  • odjištění aretačních západek je ovládané elektromagneticky, což odpovídá moderním požadavkům na komfort obsluhy
  • nastavitelná výška zvedacích adaptérů
  • řada bezpečnostních a provozních prvků, např. ventily bránící přetížení, kontrola rychlosti spouštění apod.
  • spolehlivý, ekonomický provoz s naprosto nenáročnou údržbou, dlouhá životnost

Technické parametry

Nosnost7000 kg
Max. zdvih1900 mm
Min. zdvih141,5 mm
Celková výška5432 / 5280 / 5128 / 4976 mm (nastavitelné horní propojení sloupů)
Celková šířka3937 mm
Šířka mezi sloupy3061 mm
Výsuvná ramena935–1901 mm
Napájení400 V / 50 Hz
Elektromotor2,2 kW

Objednávka zboží

8474000001380
DSZ 7.0H NP
DSZ 7.0H NP Dvousloupový zvedák
Kč 209.990,00