Dvousloupový zvedák Consul 2.55 EL-G
Dvousloupový elektromechanický zvedák (5500 kg) v tzv. bezprahovém provedení pro zvedání i malých automobilů (např. smart) a transportérů s více-kloubovými zvedacími rameny.- vícekloubová zvedací / nosná ramena zvyšují flexibilitu použití zvedáku pro malá i velká vozidla
- 2 elektromotory, elektronicky spojené sloupy, včetně kabelového můstku s rozšířením
- nosné sloupy ze speciálního válcovaného profilu
- elektronické vyrovnávání úrovně zvedacích vozíků
- zvedací vozík se 6 válečkovými ložisky
- nosná matice je vyrobená z bronzu, bezpečnostní matice také z bronzu
- automatický olejovač pro podpůrné mazání
- zdvojeně nastavitelná teleskopická výsuvná zvedací ramena s aretací
- nastavitelný otočný talíř (cca 25 mm)
- pružně uložené dveřní dorazy
- bezpečnostní signální tón při spouštění v oblasti nohou
- GS-zkušební plaketa, DIN EN 1493, CE-certifikát
- mimořádně vysoká spolehlivost a velmi dlouhá životnost
- špičková kvalita (vyrobeno v Německu)
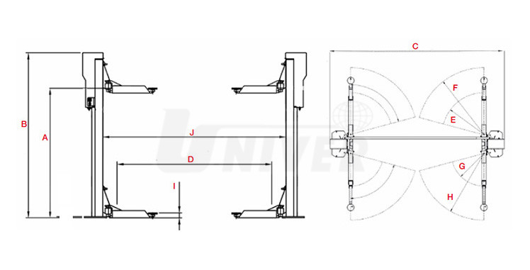
Technické parametry
| Nosnost | 5500 kg |
|---|---|
| Výška zdvihu (A) | 1940 mm |
| Doba zdvihu / spouštění | 45 s |
| Nejnižší výkyvná výška (I) | 100 mm |
| Vysunutí ramen (vícekloubová) (G/H) | 1400–1730 mm |
| Vysunutí ramen (vícekloubová) (E/F) | 1400–1730 mm |
| Průjezdná šířka zvedáku (D) | 2560 mm |
| Mezera mezi sloupy vnitřní (J) | 2950 mm |
| Šířka (C) | 3800 mm |
| Výška (B) | 2900 mm |
| Elektromotor | 2 × 5,0 kW |
| Napětí | 400 V / 50 Hz |
| Jištění | 25 A |
| Krytí | IP 54 |
Volitelné příslušenství:
566067 Sada (4 ks) pozinkovaných nájezdových ramp pro ulehčení podchycení automobilů s nízko uloženými podvozky
432500 Upevňovací materiál pro zvedáky s nosností až 7000 kg, 12 ks reaktivních kotev M16, lepicí patrony a kroužky
423160 ConSoft Diagnose-Software, 1 licence, údržbový a diagnostický software pro dvousloupové zvedáky
371005 Stropní vypínání pro větší bezpečnost při nízké výšce stropu (světelná závora)
365189 Stropní vypínání pro větší bezpečnost při nízké výšce stropu (tahový spínač)
561514 Distanční objímky pro nosná ramena zvedáků Consul s nosností vyšší než 4,5 t, dl. 100 mm, sada 4 ks
641118 Distanční objímky pro nosná ramena zvedáků Consul s nosností vyšší než 4,5 t, dl. 12 mm, sada 4 ks
561357 Distanční objímky pro nosná ramena zvedáků Consul s nosností vyšší než 4,5 t, dl. 150 mm, sada 4 ks
566018 Distanční objímky pro nosná ramena zvedáků Consul s nosností vyšší než 4,5 t, dl. 200 mm, sada 4 ks
561498 Distanční objímky pro nosná ramena zvedáků Consul s nosností vyšší než 4,5 t, dl. 50 mm, sada 4 ks
492025 Kabelový můstek pro všechny dvousloupové zvedáky Consul, sada
435404 Kabelový můstek / rozšíření, při výšce zvedáku větší než 3600 mm, sada, bez kabelového prodloužení
554709 Úchyty pro vozy Ford Transit, sada 4 ks, pro dvousloupové zvedáky s nosností vyšší než 4,5 t
567958 Úchyty pro terénní vozy Mercedes-Benz, sada 4 ks, pro dvousloupové zvedáky s nosností vyšší než 4,5 t
593954 Úchyty pro vozy Renault Master, sada obsahuje 2 ks pro přední a 2 ks pro zadní nápravu a 4 ks distanční objímky 100 mm
554667 Úchyty pro vozy MB Sprinter / VW Crafter, sada obsahuje 2 ks pro přední a 2 ks pro zadní nápravu, pro dvousloupové zvedáky s nosností vyšší než 4,5 t
705731 Úchyty pro vozy Tesla, pro všechny dvousloupové zvedáky Consul se systémem otočných talířů
554303 Úchyty pro vozy VW Amarok, sada 2 ks pro přední a 2 ks pro zadní nápravu, pro dvousloupové zvedáky s nosností vyšší než 4,5 t
399832 Jednotka pro úpravu stlačeného vzduchu s olejovačem a odlučovačem vody s držákem, připojení 1/4"
Objednávka zboží
3310005660670
566067
566067
CONSUL 566067 Sada 4ks nájezdových ramp pro vozy s nízko uloženými podvozky
na objednávku
na objednávku
Kč 39.660,00
3310004325000
432500
432500
CONSUL 432500 Upevňovací materiál pro 2-sloupové zvedáky do 7000 kg
na objednávku
na objednávku
Kč 7.460,00
3310004231600
423160
423160
CONSUL 423160 ConSoft Diagnose-Software (1 licence)
na objednávku
na objednávku
Kč 77.680,00
3310003651890
365189
365189
CONSUL 365189 Stropní vypínač s tahovým spínačem
na objednávku
na objednávku
Kč 17.060,00
3310005615140
561514
561514
CONSUL 561514 Distanční objímky (4 ks) pro nosná ramena dl. 100 mm
na objednávku
na objednávku
Kč 10.280,00
3310006411180
641118
641118
CONSUL 641118 Distanční objímky (4 ks) pro nosná ramena dl. 12 mm
na objednávku
na objednávku
Kč 2.460,00
3310005613570
561357
561357
CONSUL 561357 Distanční objímky (4 ks) pro nosná ramena dl. 150 mm
na objednávku
na objednávku
Kč 13.490,00
3310005660180
566018
566018
CONSUL 566018 Distanční objímky (4 ks) pro nosná ramena dl. 200 mm
na objednávku
na objednávku
Kč 13.600,00
3310005614980
561498
561498
CONSUL 561498 Distanční objímky (4 ks) pro nosná ramena dl. 50 mm
na objednávku
na objednávku
Kč 9.250,00
3310004354040
435404
435404
CONSUL 435404 Kabelový můstek při výšce více než 3600 mm (sada)
na objednávku
na objednávku
Kč 3.680,00
3310005547090
554709
554709
CONSUL 554709 Sada adaptérů Ford Transit (4 ks)
na objednávku
na objednávku
Kč 56.190,00
3310005679580
567958
567958
CONSUL 567958 Úchyty pro terénní vozy Mercedes Benz
na objednávku
na objednávku
Kč 49.870,00
3310005939540
593954
593954
CONSUL 593954 Sada adaptérů pro vozy Renault Master
na objednávku
na objednávku
Kč 56.190,00
3310005546670
554667
554667
CONSUL 554667 Sada adaptérů pro vozy MB Sprinter / VW Crafter (4 ks)
na objednávku
na objednávku
Kč 31.710,00
3310003998320
399832
399832
CONSUL 399832 Jednotka pro úpravu stlačeného vzduchu
na objednávku
na objednávku
Kč 9.530,00





